abb變頻器接線圖及無負壓供水設備調試參數圖
acs510系列abb變頻器接線圖及無負壓供水設備調試參數圖

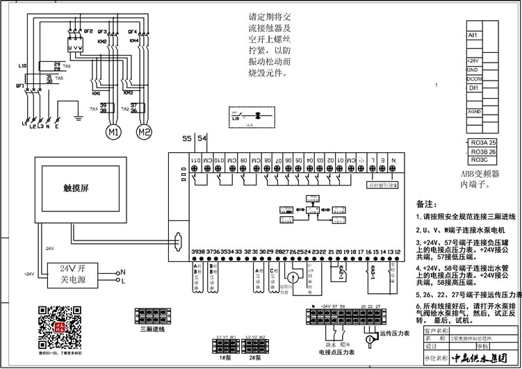
acs510系列abb變頻器接線圖
無負壓供水設備調試參數圖
無負壓供水設備調試前應具備的條件:
1、控制柜應安裝在清潔、干燥、無滴水、無腐蝕性、無導電性粉塵的場合。
2、電源進線三相五線制,電壓要求:380V±10%,進入電控柜的方式一般應采用下進線制,零線、地線分別壓在零線絕緣端子、接地銅排上。要求接線牢固可靠。
3、穿線管應在預制地面時,按廠家或設計單位的穿線圖預埋,鋼管按圖紙要求高出預制地面并套絲及穿鋼帶線。
4、供水管道內的雜質雜物沖洗干凈才能與設備對接,設備充滿水后方準調試,水泵不能空載調試,否則會造成水泵損壞。
5、使用臨時電源調試時。現場要砸接地極。接好地線,更換正式電源后確保水泵旋轉方向正確。
acs510系列abb變頻器參數設定:
常見有參數有變頻器頻率設定、運行操作、頻率、基本頻率、額定電壓、輸出電壓、加速時間、減速時間、直流制動開始頻率、直流制動時間、起動頻率值、起動頻率保持時間、停止頻率、數據保護、功能代碼說明、LCE監視、反向旋轉禁止、熱繼動作電流等。
- 上一篇:中贏罐式無負壓增壓供水設備驚艷環保節能科技會 2017/7/6
- 下一篇:中贏新型恒壓變頻供水控制器是如何在變頻供水控制柜中實現傳輸功 2017/7/6


